Leia sobiv kinnisvara Eestis meie otsingusoovituste abil
Nugise tee 4, Pärnu maakond

Kliki suurendamiseks
335 000 €
1 724 €/m²
5
194.3 m²
2
Maja
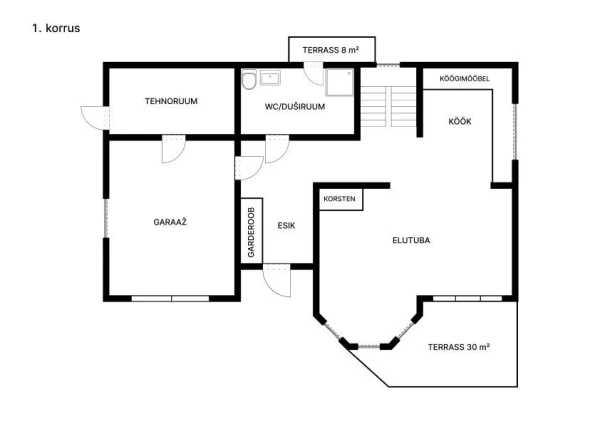
UUS PAKKUMINE Kevad on kohe käes ja nüüd on õige aeg osta oma perele uus kodu. Selle kodu eelised on privaatne kinnistu ja väga hea maja planeering suuremale perele. Vaata pakkumist ja tule tutvuma ka kohapeale. Maja hinnas võimalus veel läbi rääkida. Head asjad ei jää ootele! Kasuta võimalust ja saa omale hea hinnaga kodu! Müügipakumistesse on lisandunud 2020 a valminud kahekorruseline kivimaja suurema kõrg-ning madalhaljastud kinnistuga Nugise tee 4, Eametsa külas, Tori vallas, Pärnumaal. KINNISTU Kinnistu kogupindala on 2425 m2. Privaatne kinnistu on maitsekalt kujundatud ilupuude - ning põõsastega, noore viljapuuaiaga, veesilmaga. Kinnistu sisene sissesõidu tee ning maja esine on kaetud tänavakiviga. Hoonestusena asub seal kahekorruseline elumaja ja väike kuni 20 m2 abihoone. ELAMU Elamu on suletud netopindala 194.30 m2, eluruumide pindala 159,1m2. Esimesele korrusele jääb avar ning päikeseküllane elutuba, sealt pääseb majaesisele päikeseterrassile (30m2), lisaks avatud köök, esikuosa, duširuum/ WC (pääs maja taha terrassile- 8m2), automaatikaga tõsteuksega garaaž( garaažis epoksiidkate põrandal) ja tehniline ruum. Teisel korrusel asuvad 4 eraldi magamistuba, trepihall, tubade vaheline koridor ning vannituba / WC. Korruste vaheline vahelagi on betoonist. Esimese korruse lae kõrgus on 2,5 m. Majal on värvitud kõrgkvaliteetne valtsplekk - katus ning korralik vihmaveesüsteem. Aknad ja terrassiuksed: kolmekordne klaas soojapidavus U-0.5-0,7 W/m2K, mis aitavad hoida põrandakütte ja soojuspumba toodetud soojust majas sees ning vähendavad seega ka energiakulu. Elamu on ehitatud Fiboblokist, välisviimistlus krohv, lintvundament Fibo kergplokkidel. Elamu on läbimõeldud projektiga, hea ruumide asetus. Ilmakaarte suhtes samuti suurepärase asendiplaaniga. TEHNOSÜSTEEMID JA KOMMUNIKATSIOONID *Elekter 3 x 25 Amprit *Küte : Õhk - vesi soojuspump (Küttetorustik mõlemal korrusel põrandates), võimalus soovi korral paigaldada näiteks maakütte adrekaat või Bellet katel. *Soe tarbevesi soojuspumbaga, mis toodab sooja vett 3-4 korda energiatõhusamalt kui elektriline boiler. *Eraldi välja toodud toitekaabel generaatori paigaldamiseks *Telia digi-tv ja interneti kaabeldus *Tsentraalne vesi-ja kanalisatsioon *Signalisatsioon + tuleohutussüsteem *Kamina ehitamise valmidus, paigaldatud on moodulkorsten *Ventilatsioon ÜMBRUS Sauga jõeni u 100 m, ümbruses teised üksikelamud, bussipeatus u 500 m, lähim toidupood, lasteaed Sauga alevikus. Kinnistu juurde viib asfaltkattega tee millel on tänavavalgustus. MÜÜGIHIND SISALDAB Kogu maja integreeritud mööblit, köögitehnikat, sanitaartehnikat, aknakatteid, valgusteid. Võimalus küsida eraldi muu sisuste osas. Kui olete otsimas kodu, mis asub looduskaunis asukohas privaatsemana ning on uuem maja, siis vaadake seda pakkumist! Olete oodatud kohapeale tutvuma! Lisaküsimustele vastan meeleldi. Meie ettevõtte kaudu võimalus tellida eksperthinnang ning saada pankade sooduskoodid lepingutasude tarbeks. Nõustan ning suunan ostjat parima pakkumise saamiseks. Küsi julgelt lisainfot ja tule majaga tutvuma. Lahe Kinnisvara on Google’i hinnangute põhjal Eesti SOOVITATUIM KINNISVARABÜROO! Telli meilt: TULEMUSLIK KINNISVARA MÜÜK: meie kliendid toovad välja müügi kiiruse, sujuva protsessi, kindlustunde ning olukorrad, kus müügihind kujunes isegi kõrgemaks. Võta ühendust www.lahekinnisvara.ee/maaklerid KIIRE KINNISVARA HINDAMINE: meil töötab enim riiklikult tunnustatud eksperte ja 7. kutsetasemega hindajaid. Kliendid tunnustavad meie põhjalikkust, kiirust, täpsust ja professionaalset suhtlust. Võta ühendust www.lahekinnisvara.ee/hindamine USALDUSVÄÄRNE ÜÜRIKORRALDUS: leiame usaldusväärse üürniku, tehes taustakontrolli ning koostades juriidiliselt korrektsed lepingud. Võta ühendust www.lahekinnisvara.ee/maaklerid HALDUS: et teie kinnisvara oleks hoitud, lähtume kinnisvara haldamisel omaniku huvidest ja soovidest. Võta ühendust: www.lahekinnisvara.ee/haldus KOOSTÖÖ PANKADEGA, et Lahe Kinnisvara klient saaks parima kodulaenu pakkumise. Küsi maaklerilt või hindajalt SEB pakkumist Lahe Kinnisvara kliendile. Kuni 31.03 eriti hea pakkumine!
Avaldatud 30. märts 2026
Sissemakse summa: 50 250 €
Praegused Eesti intressimäärad on tavaliselt 4-5,5%
Kohandage väärtusi vastavalt oma oodatavatele kuludele
Elamiskulude hinnangud on ligikaudsed. Tegelikud kulud sõltuvad tarbimisest, teenusepakkujast ja aastaajast.
335 000 €
1 724 €/m²
Sissemakse summa: 50 250 €
Praegused Eesti intressimäärad on tavaliselt 4-5,5%
Kohandage väärtusi vastavalt oma oodatavatele kuludele
Elamiskulude hinnangud on ligikaudsed. Tegelikud kulud sõltuvad tarbimisest, teenusepakkujast ja aastaajast.